Kronos 140
Kronos 140 4WDM ist ein Rückewagen mit großer Nutzlast für diejenigen, die maximale Leistung im Gelände suchen. Ein Forwarder mit Verkehrseigenschaften eines Traktors, der sich durch seine Konstruktion in ungleichmäßigen Boden- und steilen Geländeverhältnissen bewegen kann. Das Antriebssystem des Wagens ist mit einer NAF Boogie-Achse ausgerüstet, die auch in vielen Forsttraktoren und Holzvollerntern eingebaut wird. Er ist mit Ausgleichsperre und Lamellenbremse ausgerüstet. Die Transmission hat eine Gleitkupplung zum Schutz vor vorübergehenden Überlastungen. Als Standardausrüstung hat der Wagen eine kraftschlüssige Kupplung mit integriertem Überdrehzahlschutz. Dieser wird alarmiert, wenn die eingeschaltete Boogie-Tandemachse die Geschwindigkeit 10 km/h übersteigt. Der Wagen kann mit Ketten und Bändern ausgerüstet werden.
Spezifikation:
- Große Antriebskraft
- Lamellenbremse
- Hohe Bodenfreiheit
- Starkes Gestell für schwere Kräne und große Lasten
- Starke Schemel, die auch bei Forsttraktoren eingesetzt werden
- Y-Deichselankupplung oder traditionelle Zugdeichselankupplung mit Rahmensteuerung
- Steuereinheit für die Funktionen
- Hydraulische Rahmenverlängerung
- Tilt für +5 – -25˚ Winkel, optional
- Zentralschmierung
PRODUKTINFORMATION
| Modell | 91 | 121 | 140 4WDM | 150 | 150 4WD | 160 4WDM | 120 4WD | 120H | 100 4WD | 100H |
| Gewicht, kg | 1150 | 2600–4800 | 5400 | 4100-4500 | 4100-4900 | 6600 | 2050 | 1690 | 1850 | 1490 |
| Tragfähigkeit, kg | 9000 | 12400 | 12000 | 15000 | 15000 | 13000 | 12000 | 12000 | 10000 | 10000 |
| Achslast, max zul. Bei 30 km/h | 9000 | - | 14000 | - | - | 16000 | - | - | - | - |
| Ladequerschnitt, m² | 2 | 3 | 3,2 | 3,2 | 3,2 | 3,35 | 2,9 | 2,9 | 2,1 | 2,1 |
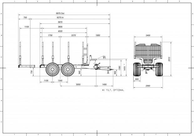
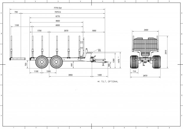
| Gesamtlänge, mm | 5550 | - | 6150 | 6100 | 6100 | 5900 | 6100 | 6100 | 5700 | 5700 |
| Länge der Ladefläche, mm | 3320 | - | 4000 | 3800-4000 | 3800-4000 | 4000 | 4200 | 4200 | 3800 | 3800 |
| Rungenenpaar: Fix / Verschiebbar | 1/2 | 0/4 | 1/3 | 1/3 | 1/3 | 0/4 | 4/0 | 4/0 | 3/0 | 3/0 |
| Rungen mit Verlängerungen | - | - | 8 | 8 | 8 | 12 | 8 | 8 | 6 | 6 |
| Achsenabstand (symmetrisch), mm | 1040 | - | 1300 | 1220 | 1220 | 1500 | 1040 | 1040 | 900 | 1040 |
| Boggieachsen Schwenkwinkel, Grad | 20 | 20 | 20 | 20 | 20 | 20 | 20 | 20 | 20 | 20 |
| Schubkraft des Anhängers, kN (kp) | - | - | 75 (7500) | - | 16 (1600) | 90 (9000) | 16 (1600)* | ~ 610 | 16 (1600)* | - |
| Bodenfreiheit, mm | ~650 | ~ 550 | ~ 640 | ~ 640 | ~ 660 | ~ 610 | ~ 610 | ~ 580 | ~ 580 | |
| Bodenfreiheit hinten unter Rahmen, mm | 569 | ~770 | ~ 700 | ~ 700 | ~ 700 | ~ 840 | ~ 610 | - | ~ 580 | ~ 580 |
| Bereifung | 91 | 121 | 140 4WDM | 150 | 150 4WD | 160 4WDM | 120 4WD | 120H | 100 4WD | 100H |
| 400/60-15.5/14 | S | - | - | - | - | - | - | - | s | s |
| 500/55-17/12 ELS | O | - | - | - | - | - | s | s | o | o |
| 550/45-22.5/12 ELS | - | S | - | - | - | - | o | o | o | o |
| 600/50-22.5/12 ELS L-1 TL | - | O | s | s | s | - | - | - | - | - |
| 600/50-22.5/16 ELS L-2 SF (with steel breaker) | - | - | o | o | o | - | - | - | - | - |
| 600/50-22.5/16 TRS 6-2 SF (with steel breaker) | - | - | o | - | - | - | - | - | - | - |
| 710/45x22.5 Nokian Forest King (with steel breaker) | - | - | o | - | - | - | - | - | - | - |
| 700/50-26.5/16 TRS SFS (with steel breaker) | - | - | - | - | - | S | - | - | - | - |
| 600/55-26.5/16 TRS L-2 SF (with steel breaker) | - | - | - | - | - | O | - | - | - | - |
| Recommended crane | 406/407 | - | Kronos Serie-5000, Kronos Serie-5020, Kronos Serie-6020, Kronos Serie-8020, Kronos Gripto 1010 | Kronos Serie-5000, Kronos Serie-5020, Kronos Serie-6020, Kronos Serie-8020, Kronos Gripto 1010 | Kronos Serie-5000, Kronos Serie-5020, Kronos Serie-6020, Kronos Serie-8020, Kronos Gripto 1010 | Kronos Serie-5000, Kronos Serie-5020, Kronos Serie-6020, Kronos Serie-8020, Kronos Gripto 1010 | Kronos Serie-4000, Kronos Serie-5000, Kronos Serie-6020 | Kronos Serie-4000, Kronos Serie-5000, Kronos Serie-6020 | Kronos Serie-4000 | Kronos Serie-4000 |
| Ausrüstung | 91 | 121 | 140 4WDM | 150 | 150 4WD | 160 4WDM | 120 4WD | 120H | 100 4WD | 100H |
| Frontgitter | S | S | s | s | s | S | s | s | s | s |
| Hydraulisch ausschiebbare Frontgitter und Rungenpaar | - | O | o | o | o | O | - | - | - | - |
| Nasse Mehrscheibenbremsen mit Fernbedienung | - | - | s | - | - | S | - | - | - | - |
| Fahrbremsen (hydraulische Trommelbremse) | O | - | - | s | s | - | o | o | o | o |
| Parkbremse Betriebsbereitschaft (vorbereitet) | O | O | o | o | o | O | o | o | o | o |
| Achsensperre | - | - | s | - | - | S | - | - | - | - |
| Mechanische Kupplung und Achsensperre durch Steuereinheit elektronisch gesteuert | - | - | s | - | - | S | - | - | - | - |
| Schwenkwinkel der Deichsellenkung, Grad | ±33 | ±35 | ±45 | ±33 | ±33 | ±45 | ±35 | ±35 | ±35 | ±35 |
| Zwangläufige Y-Deichsel mit Rahmenlenkung | - | - | o | o | o | S | - | - | - | - |
| Teleskopische Rahmenverlängerung hinten mit einem Rungenpaar | - | - | o | o | o | O | o | o | o | o |
S = Standard, O = Zubehö.
Alle Rechte vorbehalten







