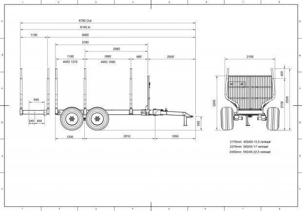
Kronos 100
The models 100 and 100 4WD are designed with double frame beams to make the structure rigid and to withstand large stresses even in demanding conditions. The 4WD model is hydraulically driven with a drive roller that automatically deploys between the tyres when the drive is switched on.
Features:
- Long drawbar lead into the tractor for the maximum compliant trailer.
- Heavy duty posts, 12 mm wall thickness
- 80 millimeter shafts on the hub
- LED driving lights protected in off-road driving, optional
- LED work lighting, optional
- Reverse camera, optional
More info
PRODUCT INFORMATION
| Model | 91 | 121 | 140 4WDM | 150 | 150 4WD | 160 4WDM | 120 4WD | 120H | 100 4WD | 100H |
| Weight, kg | 1150 | 2600–4800 | 5400 | 4100-4500 | 4100-4900 | 6600 | 2050 | 1690 | 1850 | 1490 |
| Carrying capacity, kg | 9000 | 12400 | 12000 | 15000 | 15000 | 13000 | 12000 | 12000 | 10000 | 10000 |
| Total weight permitted on bogie with max speed 30 km/h, kg | - | - | 14000 | - | - | 16000 | - | - | - | - |
| Cross-section area of load platform, m² | 2 | 3 | 3.2 | 3.2 | 3.2 | 3.35 | 2,9 | 2,9 | 2.1 | 2.1 |
| Overall length, mm | 5550 | - | 6150 | 6100 | 6100 | 5900 | 6100 | 6100 | 5700 | 5700 |
| Length of the load area, mm | 3320 | - | 4000 | 3800-4000 | 3800-4000 | 4000 | 4200 | 4200 | 3800 | 3800 |
| Bolsters: Fixed / Movable | 1/2 | 0/4 | 1/3 | 1/3 | 1/3 | 0/4 | 4/0 | 4/0 | 3/0 | 3/0 |
| Load supports | - | - | 8 | 8 | 8 | 12 | 8 | 8 | 6 | 6 |
| Bogie wheelbase, mm | 1040 | - | 1300 | 1220 | 1220 | 1500 | 1040 | 1040 | 900 | 1040 |
| Bogie movement range, degrees | 20 | 20 | 20 | 20 | 20 | 20 | 20 | 20 | 20 | 20 |
| Push force of trailer, kN (kp) | - | - | 75 (7500) | - | 16 (1600) | 90 (9000) | 16 (1600)* | ~610 | 16 (1600)* | - |
| Ground clearance, at bogie, mm | - | ~650 | ~ 550 | ~ 640 | ~ 640 | ~ 660 | ~610 | ~610 | ~ 580 | ~ 580 |
| Ground clearance at rear of frame, mm | 569 | ~770 | ~ 700 | ~ 700 | ~ 700 | ~ 840 | ~610 | - | ~ 580 | ~ ½580 |
| Tyres | 91 | 121 | 140 4WDM | 150 | 150 4WD | 160 4WDM | 120 4WD | 120H | 100 4WD | 100H |
| 400/60-15.5/14 | S | - | - | - | - | - | - | - | s | s |
| 500/55-17/12 ELS | O | - | - | - | - | - | S | S | o | o |
| 550/45-22.5/12 ELS | - | S | - | - | - | - | O | O | o | o |
| 600/50-22.5/12 ELS L-1 TL | - | O | s | s | s | - | - | - | - | - |
| 600/50-22.5/16 ELS L-2 SF (with steel breaker) | - | - | o | o | o | - | - | - | - | - |
| 600/50-22.5/16 TRS 6-2 SF (with steel breaker) | - | - | o | - | - | - | - | - | - | - |
| 710/45x22.5 Nokian Forest King (with steel breaker) | - | - | o | - | - | - | - | - | - | - |
| 700/50-26.5/16 TRS SFS (with steel breaker) | - | - | - | - | - | S | - | - | - | - |
| 600/55-26.5/16 TRS L-2 SF (with steel breaker) | - | - | - | - | - | O | - | - | - | - |
| Recommended crane | Gripto 406/407 | Gripto 608-709 | Kronos Gripto 1010 | Kronos Gripto 1010 | Kronos Gripto 1010 | Kronos Gripto 1010 | Kronos 4000 Series | Kronos 4000 Series | Kronos 4000 Series | Kronos 4000 Series |
| Equipment | 91 | 121 | 140 4WDM | 150 | 150 4WD | 160 4WDM | 120 4WD | 120H | 100 4WD | 100H |
| Front grill | S | S | s | s | s | S | S | S | s | s |
| Hydr. adjustable front grill and bolster | - | O | o | o | o | O | - | - | - | - |
| Multiple disc brakes | - | - | s | - | - | S | - | - | - | - |
| Operating brake (hydr.drum brakes) | O | O | - | s | s | - | O | O | o | o |
| Parking brake | O | O | o | o | o | O | O | O | o | o |
| Differential locking system | - | - | s | - | - | S | - | - | - | - |
| Mechanical clutch and lock electric operated from the control unit | - | - | s | - | - | S | - | - | - | - |
| Turning angle of the hydraulic drawbar, degrees | ±33 | ±35 | ±45 | ±33 | ±33 | ±45 | ±35 | ±35 | ±35 | ±35 |
| Y-drawbar with frame steering | - | - | o | o | o | S | - | - | - | - |
| Telescopic rear frame-extension with one bolster | - | - | o | o | o | O | O | O | o | o |
S = Standard equipment, O = Optional equipment.
All rights reserved. All technical dates unbinding.

